The INEOS Grenadier is an off-road vehicle that was developed by INEOS Automotive, a subsidiary of the British multinational chemicals company INEOS.
Opportunity
The Grenadier was designed to be a rugged, durable, and practical 4x4, paying homage to classic utility vehicles such as the original Land Rover Defender.
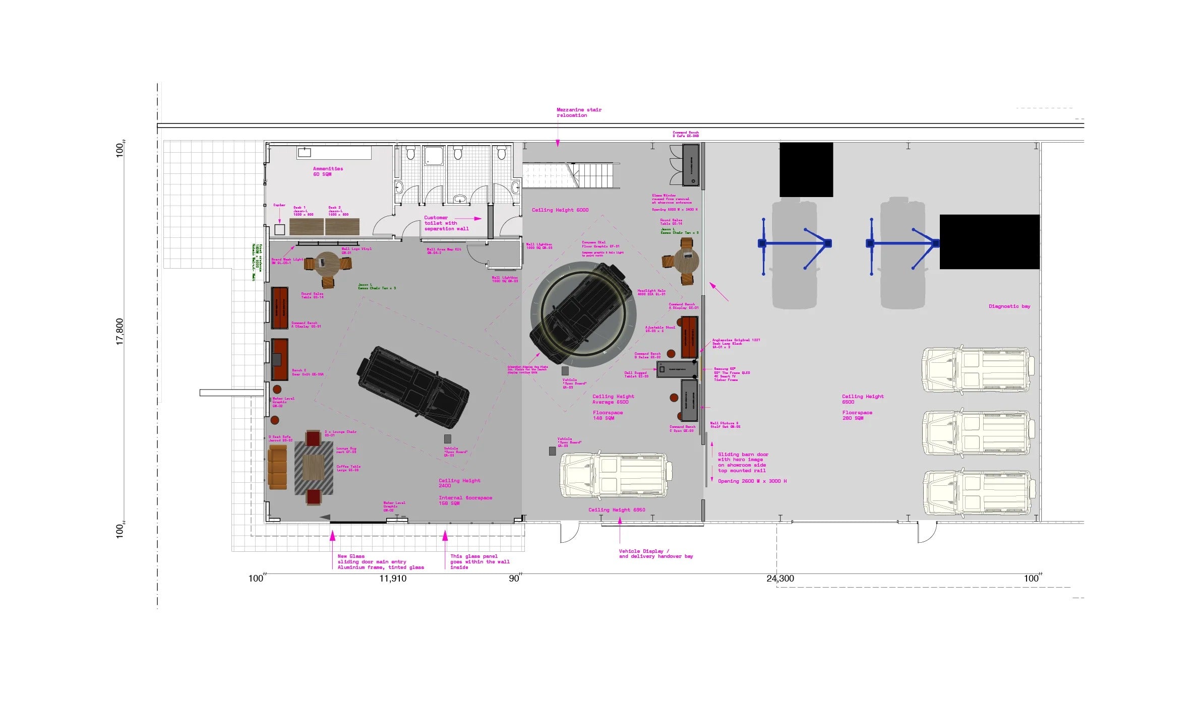
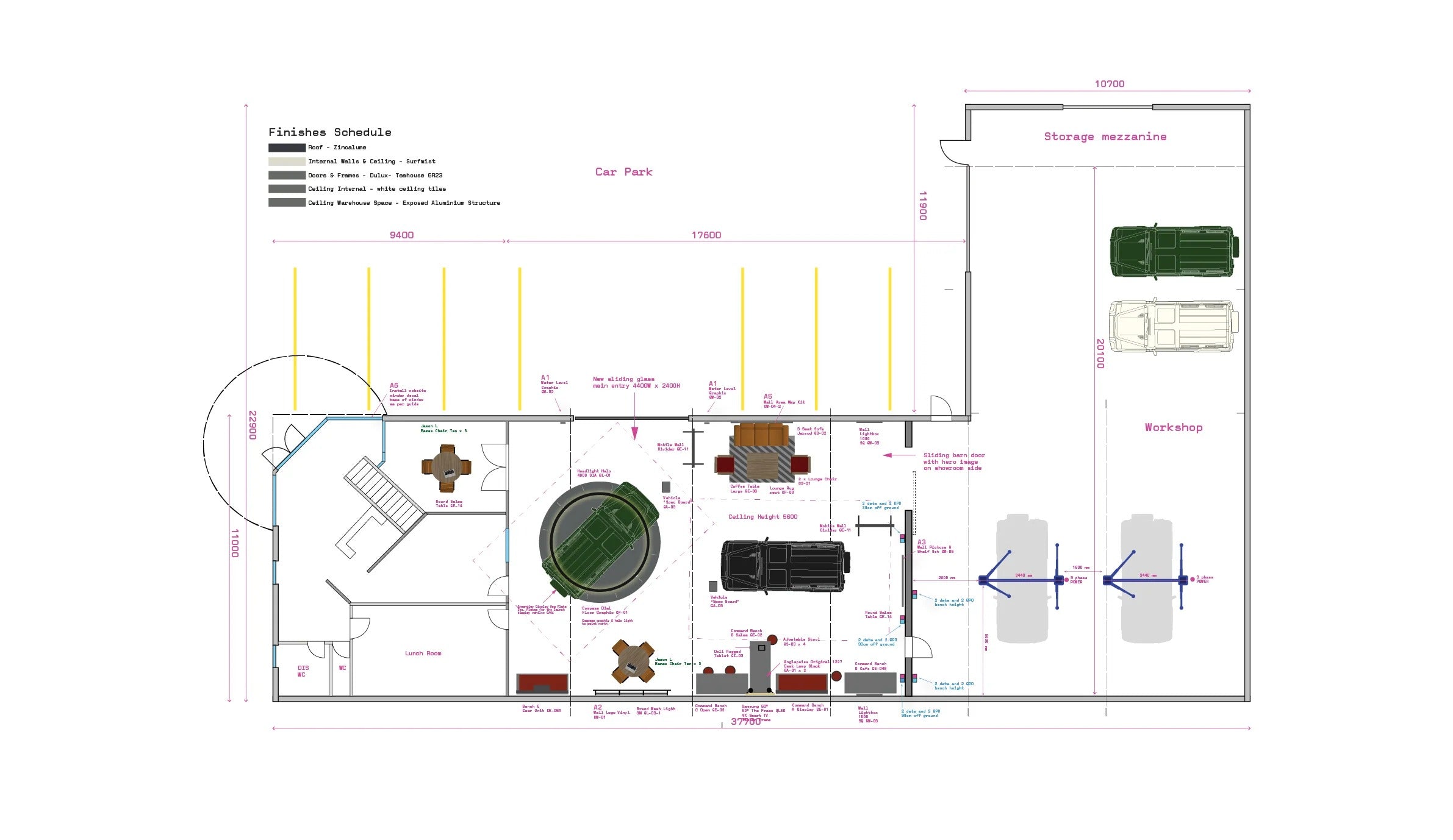
The design and cosntruct of two INEOS Grenadier Dealerships for the Fraser Motorcycle Group. Mayfield West & Albion Park Rail NSW.
Outcome
Fraser INEOS Grenadier Newcastle have now become an official INEOS Grenadier Sales and Service Centre in Newcastle.
And we are excited to introduce you to the new INEOS Grenadier. A serious off-roader built from the ground up for all NSW conditions. A rugged 4X4 that will get you there. And get the job done.













